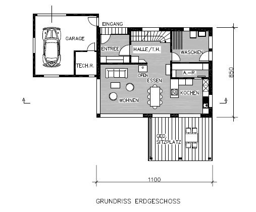
Schlicht aber modern präsentiert sich das Einfamilienhaus "Athen" auf zwei Etagen mit Flachdach als Abschluss. Die praktische Einteilung lässt ein schönes Wohlbefinden aufkommen. Dazu gehört auch die angebaute geräumige Garage und ein grosszügiger Vorplatz, der nach einem stressigen Arbeitstag das ultimative "Muss" bedeutet.

