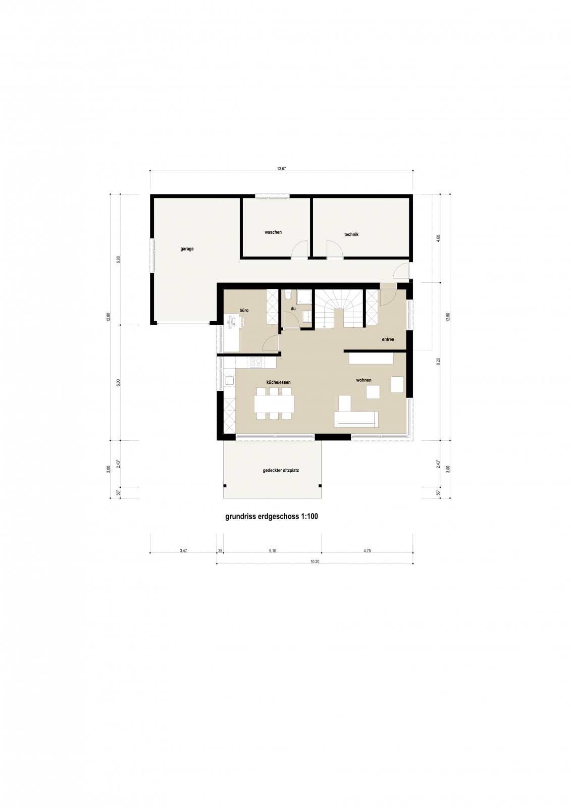
"Berlin" ist unser Vorschlag für ein kleineres Hausbudget. Die Bruttogeschossfläche beträgt 168 m2. Trotzdem müssen sie auf nichts verzichten. Das Haus ist klein aber fein konzipiert und deshalb äusserst pflegeleicht. Auf zwei Stockwerken gebaut, mit Flachdach als Abschluss bietet unser Hausbeispiel alles, was den heutigen Bedürfnissen entspricht.
